首页 技术专题 人力资源 给我们留言
热点产品搜索:
首页
|
企业概况
|
新闻中心
|
产品展示
|
技术专题
|
企业业绩
|
服务中心
|
营销市场
|
资料下载
|
联系我们
▲ 当前位置:首页 > 产品目录 > 快速切断阀> ZDY薄膜切断阀
产品目录 技术专题 服务中心 资料下载
产品目录
大禹总部位于上海浦东新区大麦湾工业区, 生产基地位于南通东安科技工业园,是一家集研发、制造、营销为一体的科技型企业。
公司主导产品有电动/气动调节阀、自力式调节阀、耐腐蚀调节阀、特殊类调节阀、O型、V型球阀、补偿式半球阀、蝶阀、放料阀等38个系列400多个规格的产品,产品在石油、化工、冶金、电力、造纸、环保、轻工等行业中广泛应用。
ZDY薄膜切断阀

下一条:已经没有了

上一条:ZDY250活塞切断阀

产品概述

气动薄膜切断阀采用顶导向结构,配用多弹簧执行机构。具有结构紧凑、重量轻、动作灵敏、流体通道呈S流线型、压降损失小、阀容量大、拆装方便等优点。

切断阀接受来自调节仪表的信号,切断、开启或改变介质流向,达到对压力、流量、温度或液位等工艺参数自动控制。广泛应用于石油、化工、冶金、电力、轻工、纺织等各种工业部门的生产过程自动控制和远程控制系统中。

本系列产品有薄膜式、活塞式两种。阀体结构有单座、套筒、双座(二位三通)三种,密封形式有填料密封和波纹管密封两种,产品公称压力等级有PN10、16、40、64四种,公称口径范围DN20~200mm。适用流体温度由-60~450℃。泄漏量等级为IV级或Ⅵ级。流量特性为快开。

产品特点

·切断阀采用多弹簧执行机构与调节机构用三根立柱相连,整个高度可减小约30%,重量可减轻约30%。
·阀体按流体力学原理设计成等截面低流阻流道,额定流量系数增大30%。
·阀内件密封部分有严密型和软密封两种,严密型为堆焊硬质合金,软密封型为软质材料制作,关闭时密
封性能优良。
·平衡型阀内件,提高了切断阀的许用压差。
·波纹管密封型对移动的阀杆形成完全的密封,堵绝了介质外漏的可能性。
·活塞式执行机构,操作力大,使用压差大。

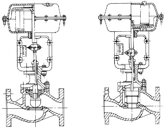
工作原理和结构

气动单座调节阀由ZHA(B)型气动多弹簧薄膜执行机构和JVP型低流阻直通单座阀组成。见图1(a)。
ZMQM型套筒调节阀由ZHA(B)型气动多弹薄膜执行机构和JVM型低流阻套筒阀组成见图1(b)。
外来的气动信号压力输入膜室后,此压力作用在膜片上产生推力,此力压缩弹簧组,并使推杆移动而带动阀杆使阀芯开关,直至推力与弹簧组被压缩后的反力平衡而稳定在某个行程上为止。依照上述原理,阀芯的行程大小与输入信号压力的大小形成一定的比例关系。

气动多弹簧薄膜执行机构按作用方式可分为正作用式和反作用式两种。当信号压力增加时,推杆往伸出膜室的方向动作的执行机构为正作用式,型号为ZHA型。当信号压力增加时,推杆往退进膜室的方向动作的执行机构为反作用式,型号为ZHB型。它们分别如图1(a)和图1(b)中的执行机构所示。

ZMQP型和ZMQM型气动切断阀按照开关方式的不同可分为气关式和气开式两种。气关式阀由正作用执行机构和阀构成。当输入信号压力由下限值改变为上限值时,阀从全开到全关。气开式阀由反作用执行机构和阀组成,当输入信号压力由下限值改变为上限值时,阀从全关到全开。它们分别如图1(a)和图1(b)所示。
气动多弹簧薄膜执行机构高度矮、重量轻、装校简便。它由膜片、压缩弹簧、托盘、推杆、支架、轴套、膜盖等主要零件构成。膜片为较深的盆形,有效面积变化小,并采用优质橡胶,在-40℃至+85℃温度下使用,操作如常。压缩弹簧采用多根组合的形式。以减少高度、推杆的导向表面精细加工,提高硬度和降低粗糙度,达到减小回差和增加密封性的效果。反作用式执行机构采用O形密封圈型式,与推杆、轴套配合,结构简单,密封可靠,通过正确的设计和精确的加工,本机构省去了压缩弹簧的调节结构,可一次装成,减小调正的麻烦。推杆与阀杆的连接采用开缝螺母,装卸灵活。

图1

主要技术数据

1、阀体、阀内件

阀体形式:直通单座(套筒)
阀芯形式:上导单座(套筒)
公称通径:DN20~300mm
公称压力:PN1.6、4.0、6.4MPa
阀体、阀盖:HT200、ZG25I、ZG1Cr18Ni9、ZGOCr17Ni12Mo2、铬钼钢(1.25Cr0.5Mo、5.0Cr0.5Mo、SCPH21、钛Ti)
阀内件:1Cr18Ni9(需要特殊材料或硬化处理可与厂方商洽)
填料:聚四氟乙烯、柔性石墨
膜片:丁晴橡胶夹增强涤纶积物
压缩弹簧:60Si2Mn
推杆:2Cr13
膜盖:A3
衬套:2Cr13
垫片:橡胶石棉板、1Cr18Ni9不锈钢石棉缠绕垫片、聚四氟乙烯、柔性石墨
压缩弹簧:60Si2Mn

公称通径 DN(mm)

15

20

25

32

40

50

65

80

100

125

150

200

额定流量系数 KV

单座、双座

5

7

11

20

30

48

75

120

190

300

480

760

套筒

 

11

20

30

48

75

120

190

300

480

760

公称压力 PN(MPa)

1.0 1.6 4.0 6.4

额定行程 (mm)

8

12

20

25

40

50

有效面积???(c m 2 )

ZMQ 型

100

200

400

600

1000

ZSQ 型

100

125

160

250

允许泄漏量

硬密封 1/h

- 般: 10 -4 X 阀额定容量;严密型:单、双座: 1.2X10 -7 ,套筒 5X10 -6 X 阀额定容量

软密封

VI 级

允许压差
(MPa)

ZMQP正作用

6.4

5.09

2.91

1.85

2.18

1.33

1.52

0.99

0.62

0.60

0.69

0.39

ZMQP反作用

6.4

6.4

3.88

2.47

2.91

1.77

2.03

1.32

0.83

0.80

0.92

0.52

ZSQP

6.4

6.1

3.5

2.3

3.0

1.9

1.9

1.5

0.93

0.84

0.65

0.47

信号压力(kPa)

ZMQ

0 或 250

ZSQ

0 或 400 ~ 600

1)本产品性能指标贯彻GB/T4213-92;
2)表中允许压差值若大于公称压力则取公称压力值,小于等于公称压力值则不变;
3)表中允许值为使用标准气缸值,可配用不同的气缸提高允许压差。

图2

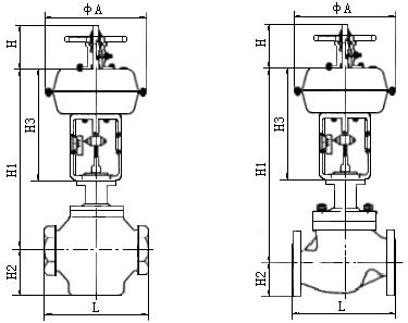
表2??ZJHP型和ZJHM型气动调节阀外形尺寸表


公称

 

A

L

H3

H

H1

H2

重量 Kg
(参考)

通径
DN

PN6
PN16

PN
40

PN
64

常 温

中 温

PN
6

PN
16

PN
40

PN
64

PN6
PN16

PN40
PN64

G3/4″

236

120

120

120

190

120

253

280

31

31

31

 

11

12

20

 

285

181

194

206

280

142

398.5

548.5

45

52.5

52.5

65

19

23

25

184

197

210

410.5

560.5

50

57.5

57.5

70

20

24

32

200

210

220

412

572

60

70

70

77.5

24

32

40

222

235

251

307

455

620

65

72.5

72.5

85

26

35

50

252

267

286

457.5

627.5

70

80

80

90

30

40

65

 

360

276

292

311

398

155

610

790

80

92.5

92.5

102.5

47

66

80

298

317

337

622

807

95

98

98

107.5

55

78

100

352

368

394

640

850

105

110

117.5

125

65

99

125

470

420

442

477

530

220

864

1084

120

125

135

147.5

88

120

150

451

473

508

870

1130

132.5

142.5

150

172.5

102

145

200

600

610

650

890

1150

160

170

187.6

207.5

140

184

250

574

730

730

775

756

294

950

1250

187.5

202.5

225

235

160

205

300

745

850

900

1020

1370

220

230

257.5

265

190

238

350

889

927

972

1045

1400

250

260

287.5

300

220

270

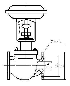
2、法兰连接尺寸

本产品的法兰连接尺寸符合国家标准GB9115.7-88、GB9115.9-88、GB9115.19-88,PN64符合JB79-59。此连接尺寸与老产品的采用的JB78-59《铸铁法兰》,JB79-59《铸钢法兰》中的连接尺寸基本一致,可以套用,安装时不影响和老产品的更换。

图3

表3 气动切断阀法兰连接尺寸表

公称通径 DN

D

D1

Z—φd

15

95

65

4—φ14

20

105

75

4—φ14

25

115

85

4—φ14

32

135

100

4—φ18

40

145

110

4—φ18

50

160

125

4—φ18

65

180

145

4—φ18

80

195

160

8—φ18

100

215

180

8—φ18

125

245

210

8—φ18

150

280

240

8—φ23

200

335

295

12—φ23

250

405

355

12—φ26

300

460

410

12—φ26

订货须知

·调节阀名称、型号
·公称通径(mm)
·公称压力(MPa)
·额定流量系数(Kv)
·介质名称
·工作温度及范围
·整机作用方式
·阀体、阀内件及填料材质
·所配附件

主要技术数据

1、阀体、阀内件

阀体形式:直通单座(套筒)
阀芯形式:上导单座(套筒)
公称通径:DN20~300mm
公称压力:PN1.6、4.0、6.4MPa
阀体、阀盖:HT200、ZG25I、ZG1Cr18Ni9、ZGOCr17Ni12Mo2、铬钼钢(1.25Cr0.5Mo、5.0Cr0.5Mo、SCPH21、钛Ti)
阀内件:1Cr18Ni9(需要特殊材料或硬化处理可与厂方商洽)
填料:聚四氟乙烯、柔性石墨
膜片:丁晴橡胶夹增强涤纶积物
压缩弹簧:60Si2Mn
推杆:2Cr13
膜盖:A3
衬套:2Cr13
垫片:橡胶石棉板、1Cr18Ni9不锈钢石棉缠绕垫片、聚四氟乙烯、柔性石墨
压缩弹簧:60Si2Mn

公称通径 DN(mm)

15

20

25

32

40

50

65

80

100

125

150

200

额定流量系数 KV

单座、双座

5

7

11

20

30

48

75

120

190

300

480

760

套筒

 

11

20

30

48

75

120

190

300

480

760

公称压力 PN(MPa)

1.0 1.6 4.0 6.4

额定行程 (mm)

8

12

20

25

40

50

有效面积???(c m 2 )

ZMQ 型

100

200

400

600

1000

ZSQ 型

100

125

160

250

允许泄漏量

硬密封 1/h

- 般: 10 -4 X 阀额定容量;严密型:单、双座: 1.2X10 -7 ,套筒 5X10 -6 X 阀额定容量

软密封

VI 级

允许压差
(MPa)

ZMQP正作用

6.4

5.09

2.91

1.85

2.18

1.33

1.52

0.99

0.62

0.60

0.69

0.39

ZMQP反作用

6.4

6.4

3.88

2.47

2.91

1.77

2.03

1.32

0.83

0.80

0.92

0.52

ZSQP

6.4

6.1

3.5

2.3

3.0

1.9

1.9

1.5

0.93

0.84

0.65

0.47

信号压力(kPa)

ZMQ

0 或 250

ZSQ

0 或 400 ~ 600

1)本产品性能指标贯彻GB/T4213-92;
2)表中允许压差值若大于公称压力则取公称压力值,小于等于公称压力值则不变;
3)表中允许值为使用标准气缸值,可配用不同的气缸提高允许压差。

 
公司概况   新闻资讯   产品中心   营销市场   服务中心   联系我们
                     
公司简介
董事长致辞
企业宗旨
组织机构
公司荣誉
厂区概况
  企业新闻
公司文艺角
行业动态
技术文章
  调节阀
蝶阀
电磁阀
球阀
放料阀
刀型闸阀
自力式压力调节阀
衬氟及塑料阀门
工艺阀门
执行机构
  营销市场
营销网络
  服务中心
服务承诺
  联系我们
留言中心
                     
Copyright (c) 2016 上海大禹自控阀门有限公司 沪ICP备15052615号 技术支持:控制阀网