首页 技术专题 人力资源 给我们留言
热点产品搜索:
首页
|
企业概况
|
新闻中心
|
产品展示
|
技术专题
|
企业业绩
|
服务中心
|
营销市场
|
资料下载
|
联系我们
▲ 当前位置:首页 > 产品目录 > 电动球阀> ZRDY防爆电动球阀
产品目录 技术专题 服务中心 资料下载
产品目录
大禹总部位于上海浦东新区大麦湾工业区, 生产基地位于南通东安科技工业园,是一家集研发、制造、营销为一体的科技型企业。
公司主导产品有电动/气动调节阀、自力式调节阀、耐腐蚀调节阀、特殊类调节阀、O型、V型球阀、补偿式半球阀、蝶阀、放料阀等38个系列400多个规格的产品,产品在石油、化工、冶金、电力、造纸、环保、轻工等行业中广泛应用。
ZRDY防爆电动球阀

下一条:已经没有了

上一条:ZRDY防爆保温球阀

产品简介

产品名称:ZRJQ电动调节球阀
类型:防爆型
公称通径:DN15-DN300
公称压力:1.6-6.4Mpa 31.5MPa(定制
温度范围:常温:-20℃~+120℃ 散热:+120℃~+450℃
材料:WCB、CF8、CF8M、CF3、CF3M等
关键词:电动调节球阀 调节球阀 ZRJQ

主要技术数据

1、阀体

形式:直通铸造或锻造阀、台湾三片式球阀,超短型对夹式球阀
公称通径:15-300mm
公称压力:PN1.6、4.0、6.4、31.5MPa(定制)
连接形式:法兰式按JB78-59、JB79-59
材 料:HT200、ZG25I、ZG1Cr 18Ni9、WCB、ZG0Cr17Ni 12Mo2衬制聚四氟乙烯
上阀盖:常温型:-20-+120℃、散热型:+120℃-+450℃
压盖形式:螺栓压紧式
填 料:V型聚四氟乙烯填料、含浸聚四氟乙烯填料、石棉纺织填料、耐高温碳纤维填料

2、阀内组件

阀芯形式:O型阀芯
流量特性:快开型
材料:1Cr18Ni9Ti 、Oor17Ni 12Mo2衬聚四氟乙烯
密封面材料:聚四氟乙烯、硬密封

3、流量特性表

公称通径(DN) 不同开度角下的Kv值
开度 10° 20° 30° 40° 50° 60° 70° 80° 90°
50 2 4 9 17 32 60 97 151 215
80 6 11 22 44 83 155 250 389 550
100 9 18 35 71 133 248 398 620 890
150 20 40 80 160 300 560 900 1400 2000
200 36 72 143 286 737 1002 1611 2506 3580
250 57 113 226 453 848 1582 2543 3955 5650
300 81 163 325 651 1220 2278 3661 5695 8100

4、规格参数

公称通径DN 15 20 25 32 40 50 65 80 100 125 150 200 250 300
流量系数(Kv) 20 38 72 110 170 215 380 550 890 1400 2000 3580 5650 8100
可调动作范围 0-90°
允许压差△P 小于公称压力(1.6MPa)
泄漏量Q 按API598标准测试,无泄漏
环境温度℃ -20~60℃
基本误差 ±2.5%
回差 ±2.5%
死区 1%
可调范围 250:1 350:1

注:若阀内介质比较特殊,如粘度高或压力差很大则应选力矩(N.M)大的执行器。

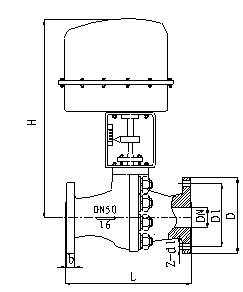
外形尺寸

ZRJQ941型电动O型球阀外形及连接尺寸

单位:mm

公称通径DN L D D1 b Z-d1
压力 1.6/2.5/4.0 1.6/2.5/4.0 1.6/2.5/4.0 1.6/2.5/4.0 1.6/2.5/4.0
15 130/130/140 95 65 14/16/16 4-14
20 140/140/150 105 75 14/16/16 4-14
25 150/150/165 115 85 14/16/16 4-14
32 165/165/180 135 100 16/18/18 4-18
40 180/180/200 145 110 16/18/18 4-18
50 200/200/220 160 125 16/20/20 4-18
65 220/220/250 180 145 18/22/22 4-18/8-18/8-18
80 250/250/280 195 160 20/22/22 8-18
100 280/280/320 215/230/230 180/190/190 20/24/24 8-18/8-23/8-23
125 320/320/360 245/270/270 210/220/220 24/28/30 8-23/8-25/8-25
150 360/360/400 280/300/300 240/250/250 24/28/30 8-23/8-25/8-25
200 400/400/550 335/360/375 295/310/320 26/34/38 12-23/12-25/12-30
250 630? 750 405/425/450 355/370/382 ? 12-23/12-29/12-32
300 750? 870 460/485/515? 410/430/450 ? 12-23/16-29/16-32

外形尺寸

ZRJQ941型电动O型球阀外形及连接尺寸

单位:mm

公称通径DN L D D1 b Z-d1
压力 1.6/2.5/4.0 1.6/2.5/4.0 1.6/2.5/4.0 1.6/2.5/4.0 1.6/2.5/4.0
15 130/130/140 95 65 14/16/16 4-14
20 140/140/150 105 75 14/16/16 4-14
25 150/150/165 115 85 14/16/16 4-14
32 165/165/180 135 100 16/18/18 4-18
40 180/180/200 145 110 16/18/18 4-18
50 200/200/220 160 125 16/20/20 4-18
65 220/220/250 180 145 18/22/22 4-18/8-18/8-18
80 250/250/280 195 160 20/22/22 8-18
100 280/280/320 215/230/230 180/190/190 20/24/24 8-18/8-23/8-23
125 320/320/360 245/270/270 210/220/220 24/28/30 8-23/8-25/8-25
150 360/360/400 280/300/300 240/250/250 24/28/30 8-23/8-25/8-25
200 400/400/550 335/360/375 295/310/320 26/34/38 12-23/12-25/12-30
250 630? 750 405/425/450 355/370/382 ? 12-23/12-29/12-32
300 750? 870 460/485/515? 410/430/450 ? 12-23/16-29/16-32

主要技术数据

1、阀体

形式:直通铸造或锻造阀、台湾三片式球阀,超短型对夹式球阀
公称通径:15-300mm
公称压力:PN1.6、4.0、6.4、31.5MPa(定制)
连接形式:法兰式按JB78-59、JB79-59
材 料:HT200、ZG25I、ZG1Cr 18Ni9、WCB、ZG0Cr17Ni 12Mo2衬制聚四氟乙烯
上阀盖:常温型:-20-+120℃、散热型:+120℃-+450℃
压盖形式:螺栓压紧式
填 料:V型聚四氟乙烯填料、含浸聚四氟乙烯填料、石棉纺织填料、耐高温碳纤维填料

2、阀内组件

阀芯形式:O型阀芯
流量特性:快开型
材料:1Cr18Ni9Ti 、Oor17Ni 12Mo2衬聚四氟乙烯
密封面材料:聚四氟乙烯、硬密封

3、流量特性表

公称通径(DN) 不同开度角下的Kv值
开度 10° 20° 30° 40° 50° 60° 70° 80° 90°
50 2 4 9 17 32 60 97 151 215
80 6 11 22 44 83 155 250 389 550
100 9 18 35 71 133 248 398 620 890
150 20 40 80 160 300 560 900 1400 2000
200 36 72 143 286 737 1002 1611 2506 3580
250 57 113 226 453 848 1582 2543 3955 5650
300 81 163 325 651 1220 2278 3661 5695 8100

4、规格参数

公称通径DN 15 20 25 32 40 50 65 80 100 125 150 200 250 300
流量系数(Kv) 20 38 72 110 170 215 380 550 890 1400 2000 3580 5650 8100
可调动作范围 0-90°
允许压差△P 小于公称压力(1.6MPa)
泄漏量Q 按API598标准测试,无泄漏
环境温度℃ -20~60℃
基本误差 ±2.5%
回差 ±2.5%
死区 1%
可调范围 250:1 350:1

注:若阀内介质比较特殊,如粘度高或压力差很大则应选力矩(N.M)大的执行器。

 
公司概况   新闻资讯   产品中心   营销市场   服务中心   联系我们
                     
公司简介
董事长致辞
企业宗旨
组织机构
公司荣誉
厂区概况
  企业新闻
公司文艺角
行业动态
技术文章
  调节阀
蝶阀
电磁阀
球阀
放料阀
刀型闸阀
自力式压力调节阀
衬氟及塑料阀门
工艺阀门
执行机构
  营销市场
营销网络
  服务中心
服务承诺
  联系我们
留言中心
                     
Copyright (c) 2016 上海大禹自控阀门有限公司 沪ICP备15052615号 技术支持:控制阀网