首页 技术专题 人力资源 给我们留言
热点产品搜索:
首页
|
企业概况
|
新闻中心
|
产品展示
|
技术专题
|
企业业绩
|
服务中心
|
营销市场
|
资料下载
|
联系我们
▲ 当前位置:首页 > 产品目录 > 电动球阀> ZADY电动球阀
产品目录 技术专题 服务中心 资料下载
产品目录
大禹总部位于上海浦东新区大麦湾工业区, 生产基地位于南通东安科技工业园,是一家集研发、制造、营销为一体的科技型企业。
公司主导产品有电动/气动调节阀、自力式调节阀、耐腐蚀调节阀、特殊类调节阀、O型、V型球阀、补偿式半球阀、蝶阀、放料阀等38个系列400多个规格的产品,产品在石油、化工、冶金、电力、造纸、环保、轻工等行业中广泛应用。
ZADY电动球阀

下一条:ZAJQ防爆电动球阀 上一条:QDY9H41F电动球阀

产品简介

产品名称:ZAJQ电动球阀
类型:直通铸造或锻造阀
公称通径:DN15-DN300
公称压力:1.6-6.4Mpa 31.5MPa(定制
温度范围:常温型:-20-+120℃、散热型:+120℃-+450℃
材料:WCB、CF8、CF8M、CF3、CF3M等
关键词:电动球阀 球阀 ZAJQ

主要技术数据

1、阀体

形 式:直通铸造或锻造阀
公称通径:15-300mm
公称压力:PN1.6、4.0、6.4Mpa、31.5MPa(定制)
连接形式:法兰式按JB78-59 JB79-59
材 料:HT200、ZG25I、ZG1Cr 18Ni9、WCB、ZG0Cr17Ni 12Mo2、衬制聚四氟乙烯
上阀盖:常温型:-20-+120℃、散热型:+120℃-+450℃
压盖形式:螺栓压紧式
填 料:V型聚四氟乙烯填料、含浸聚四氟乙烯填料、石棉纺织填料、耐高温碳纤维填料

2、阀内组件

阀芯形式:O型阀芯
流量特性:快开型
材 料:1Cr18Ni9Ti、Oor17Ni 12Mo2衬聚四氟乙烯
密封面材料:聚四氟乙烯、硬密封

规格参数

公称通径DN 25 32 40 50 65 80 100 125 150 200 250 300
流量系数(Kv) 25 40 63 100 160 250 350 680 990 1600 2500 4000
动作范围 0-90°
允许压差△P 小于公称压力(1.6Mpa)
泄漏量Q 按API598标准测试? 无泄漏
环境温度℃ -20~60℃
基本误差 ±2%
回差 ±2%
死区 1%
可调范围 250:1

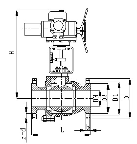
安装尺寸

ZAJQ941F/H型电动O球阀外形及连接尺寸

公称压力PN 公称通径DN 尺寸(mm)
L D D1 D2 H b z-d
1.6MPa 50 203 165 125 100 420 16 4-18
65 222 185 145 120 480 18 4-18
80 241 200 160 135 560 20 8-18
100 305 220 180 155 590 20 8-18
125 356 250 210 185 650 22 8-18
150 394 285 240 210 740 24 8-23
200 457 340 295 265 810 26 12-23
2.5MPa 50 216 365 125 100 420 20 4-18
65 241 185 145 120 480 22 8-18
80 283 200 160 135 560 22 8-18
100 305 230 190 160 590 24 8-23
125 381 270 220 188 650 28 8-25
150 403 300 250 218 740 30 8-25
200 502 360 310 278 810 34 12-25
4.0MPa 50 216 165 125 100 420 20 4-18
65 241 185 145 120 480 22 8-18
80 283 200 160 135 560 22 8-18
100 305 235 190 160 590 24 8-23
125 381 270 220 188 650 28 8-25
150 403 300 250 218 740 30 8-25
6.4MPa 50 292 180 135 105 470 26 4-23
65 330 205 160 130 530 28 8-23
80 356 215 170 140 580 30 8-23
100 406 250 200 168 630 32 8-25
125 440 295 240 202 710 36 8-30
150 495 345 280 240 760 38 8-34

安装尺寸

ZAJQ941F/H型电动O球阀外形及连接尺寸

公称压力PN 公称通径DN 尺寸(mm)
L D D1 D2 H b z-d
1.6MPa 50 203 165 125 100 420 16 4-18
65 222 185 145 120 480 18 4-18
80 241 200 160 135 560 20 8-18
100 305 220 180 155 590 20 8-18
125 356 250 210 185 650 22 8-18
150 394 285 240 210 740 24 8-23
200 457 340 295 265 810 26 12-23
2.5MPa 50 216 365 125 100 420 20 4-18
65 241 185 145 120 480 22 8-18
80 283 200 160 135 560 22 8-18
100 305 230 190 160 590 24 8-23
125 381 270 220 188 650 28 8-25
150 403 300 250 218 740 30 8-25
200 502 360 310 278 810 34 12-25
4.0MPa 50 216 165 125 100 420 20 4-18
65 241 185 145 120 480 22 8-18
80 283 200 160 135 560 22 8-18
100 305 235 190 160 590 24 8-23
125 381 270 220 188 650 28 8-25
150 403 300 250 218 740 30 8-25
6.4MPa 50 292 180 135 105 470 26 4-23
65 330 205 160 130 530 28 8-23
80 356 215 170 140 580 30 8-23
100 406 250 200 168 630 32 8-25
125 440 295 240 202 710 36 8-30
150 495 345 280 240 760 38 8-34

主要技术数据

1、阀体

形 式:直通铸造或锻造阀
公称通径:15-300mm
公称压力:PN1.6、4.0、6.4Mpa、31.5MPa(定制)
连接形式:法兰式按JB78-59 JB79-59
材 料:HT200、ZG25I、ZG1Cr 18Ni9、WCB、ZG0Cr17Ni 12Mo2、衬制聚四氟乙烯
上阀盖:常温型:-20-+120℃、散热型:+120℃-+450℃
压盖形式:螺栓压紧式
填 料:V型聚四氟乙烯填料、含浸聚四氟乙烯填料、石棉纺织填料、耐高温碳纤维填料

2、阀内组件

阀芯形式:O型阀芯
流量特性:快开型
材 料:1Cr18Ni9Ti、Oor17Ni 12Mo2衬聚四氟乙烯
密封面材料:聚四氟乙烯、硬密封

规格参数

公称通径DN 25 32 40 50 65 80 100 125 150 200 250 300
流量系数(Kv) 25 40 63 100 160 250 350 680 990 1600 2500 4000
动作范围 0-90°
允许压差△P 小于公称压力(1.6Mpa)
泄漏量Q 按API598标准测试? 无泄漏
环境温度℃ -20~60℃
基本误差 ±2%
回差 ±2%
死区 1%
可调范围 250:1
 
公司概况   新闻资讯   产品中心   营销市场   服务中心   联系我们
                     
公司简介
董事长致辞
企业宗旨
组织机构
公司荣誉
厂区概况
  企业新闻
公司文艺角
行业动态
技术文章
  调节阀
蝶阀
电磁阀
球阀
放料阀
刀型闸阀
自力式压力调节阀
衬氟及塑料阀门
工艺阀门
执行机构
  营销市场
营销网络
  服务中心
服务承诺
  联系我们
留言中心
                     
Copyright (c) 2016 上海大禹自控阀门有限公司 沪ICP备15052615号 技术支持:控制阀网